16977366
325
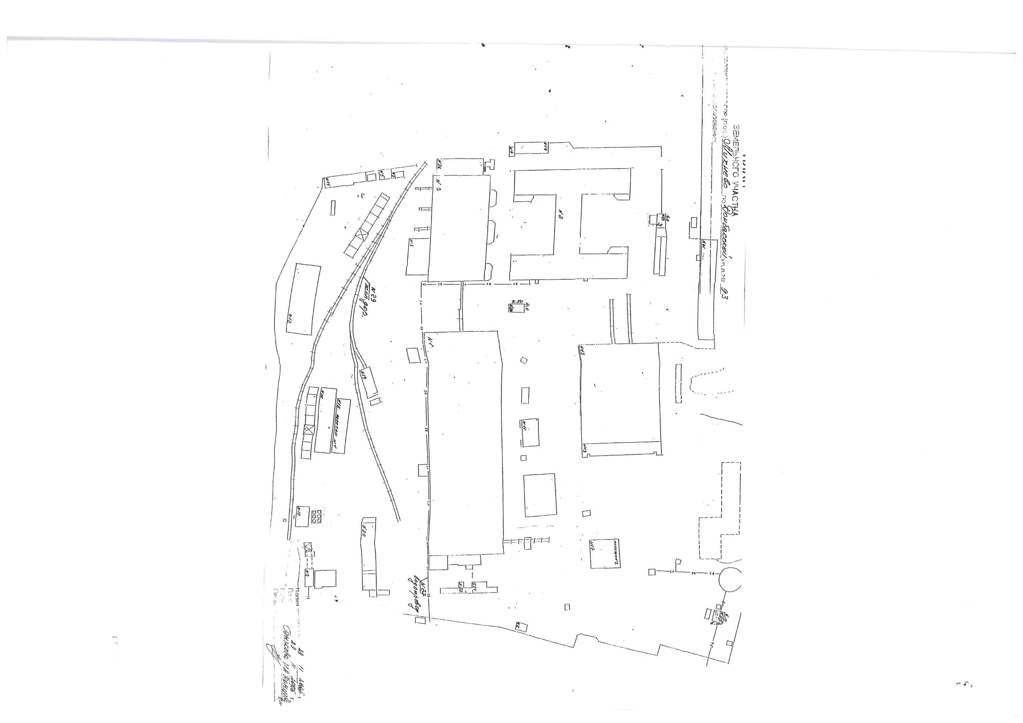
Сооружение на продажу
Московская обл., р-н. Ступинский, пгт. Михнево, ул. Донбасская, д. 93
Домодедовская
94 минуты на транспорте
Ваш онлайн-консультант
Получите консультацию по всем интересующим вопросам
Дата начала приёма заявок
26.11.2025, 17:00
Дата окончания приёма заявок
13.01.2026, 12:00
Отбор участников
20.01.2026, 07:00
Проведение торгов
23.01.2026, 07:00
Подведение итогов
23.01.2026, 14:00
Функциональное назначение
Свободное
Жилая площадь
Не указано
Нежилая площадь
Не указано
Площадь объекта
500,00 м²
Этажность дома
Не указано
Расположение и инфраструктура
Как участвовать в торгах?
Ознакомьтесь с пошаговой инструкцией, в которой вы найдете всю необходимую информацию для участия в торгах.
Узнать больше об участии в торгахВаш онлайн-консультант
Получите консультацию по всем интересующим вопросам





























