16964075
136
1-комн. квартира на продажу, 35,4 м²
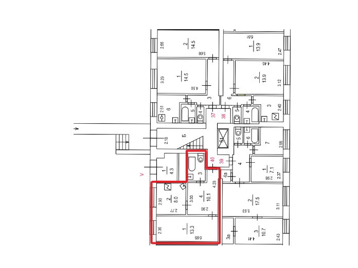
ЮАО, Даниловский р-н, Дербеневская наб., д. 13/17, корп. 1, Этаж № 1,кв. 40
Автозаводская
53 минуты пешком
23 минуты на транспорте
Общая площадь
35,4 м²
Жилая площадь
13,8 м²
Площадь кухни
7,9 м²
Этаж
1 из 9
Отделка
Требуется ремонт
Год постройки
1961
Начальная цена
12 413 000,00 руб.
350 649,72 руб. за м²
Статус
Прием заявок
Окончание приема заявок
18.11.2025, 12:00
Ваш онлайн-консультант
Получите консультацию по всем интересующим вопросам
Дата начала приёма заявок
08.10.2025, 17:00
Дата окончания приёма заявок
18.11.2025, 12:00
Отбор участников
25.11.2025, 07:00
Проведение торгов
27.11.2025, 07:00
Подведение итогов
27.11.2025, 14:00
Тип объекта
Квартира
Кадастровый номер
77:05:0001001:2200
Тип жилья
Вторичное жилье
Тип дома
Кирпичный
Год постройки
1961
Парковка
Наземная
Наличие лифта
Да
Наличие грузового лифта
Нет
Площадь объекта
35,4 м²
Этажность дома
9
Этаж
1
Номер квартиры
40
Количество комнат
1
Ремонт
Требуется ремонт
Площадь жилая
13,8 м²
Площадь кухни
7,9 м²
Наличие балкона
Нет
Наличие лоджии
Нет
Высота потолков
2,60 - 2,60 м
Санузел
Отсутствует
Расположение и инфраструктура
Как участвовать в торгах?
Ознакомьтесь с пошаговой инструкцией, в которой вы найдете всю необходимую информацию для участия в торгах.
Узнать больше об участии в торгахВаш онлайн-консультант
Получите консультацию по всем интересующим вопросам