16963752
111
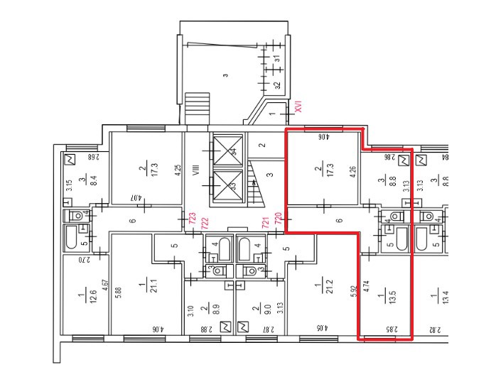
2-комн. квартира на продажу, 52,9 м²
ЮАО, р-н Орехово-Борисово Северное, Борисовский проезд, д. 11, корп. 2, Этаж № 1
Шипиловская
22 минуты пешком
22 минуты на транспорте
Общая площадь
52,9 м²
Жилая площадь
30,8 м²
Площадь кухни
8,8 м²
Этаж
1 из 14
Отделка
Требуется ремонт
Год постройки
1984
Начальная цена
14 276 000,00 руб.
269 867,67 руб. за м²
Статус
Прием заявок
Окончание приема заявок
11.11.2025, 12:00
Ваш онлайн-консультант
Получите консультацию по всем интересующим вопросам
Дата начала приёма заявок
25.09.2025, 17:00
Дата окончания приёма заявок
11.11.2025, 12:00
Отбор участников
18.11.2025, 07:00
Проведение торгов
20.11.2025, 07:00
Подведение итогов
20.11.2025, 14:00
Тип объекта
Квартира
Кадастровый номер
77:05:0011004:4985
Тип дома
Панельные
Год постройки
1984
Парковка
Наземная
Наличие лифта
Да
Наличие грузового лифта
Нет
Площадь объекта
52,9 м²
Этажность дома
14
Этаж
1
Номер квартиры
720
Количество комнат
2
Ремонт
Требуется ремонт
Площадь жилая
30,8 м²
Площадь кухни
8,8 м²
Наличие балкона
Нет
Наличие лоджии
Нет
Высота потолков
2,66 - 2,66 м
Санузел
Имеется
Количество санузлов
1 санузел
Расположение и инфраструктура
Как участвовать в торгах?
Ознакомьтесь с пошаговой инструкцией, в которой вы найдете всю необходимую информацию для участия в торгах.
Узнать больше об участии в торгахНачальная цена
14 276 000,00 руб.
269 867,67 руб. за м²
Статус
Прием заявок
Окончание приема заявок
11.11.2025, 12:00
Ваш онлайн-консультант
Получите консультацию по всем интересующим вопросам