16964199
945
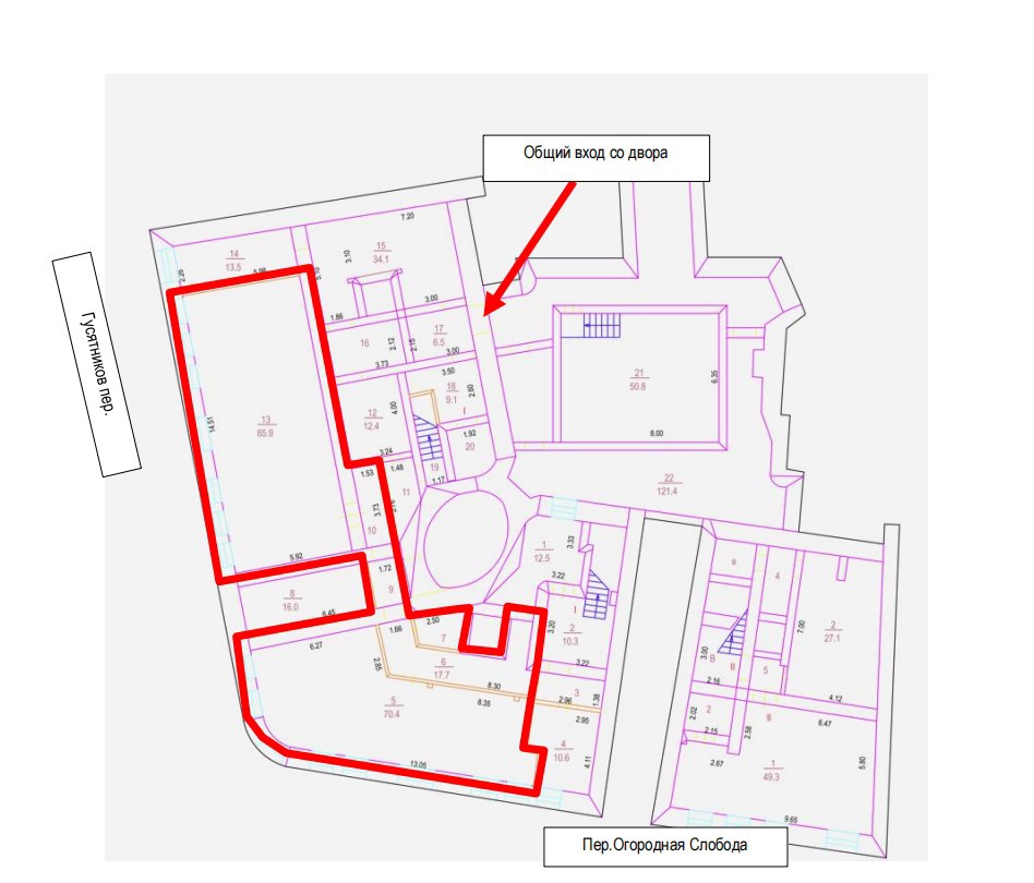
Нежилое помещение на продажу, 187,6 м²
ЦАО, Басманный р-н, Гусятников пер., д. 3/1, стр. 1, Подвал № 0, помещение 2/П
Чистые пруды
3 минуты пешком
3 минуты на транспорте
Площадь
187,6 м²
Этаж
Подвал
Этажность
5
Начальная цена
19 262 000,00 руб.
102 675,91 руб. за м²
Статус
Прием заявок
Окончание приема заявок
29.10.2025, 12:00
Ваш онлайн-консультант
Получите консультацию по всем интересующим вопросам
Дата начала приёма заявок
23.09.2025, 17:00
Дата окончания приёма заявок
29.10.2025, 12:00
Отбор участников
05.11.2025, 07:00
Проведение торгов
07.11.2025, 07:00
Подведение итогов
07.11.2025, 14:00
Тип объекта
Нежилое помещение
Кадастровый номер
77:01:0001083:2412
Площадь объекта
187,6 м²
Функциональное назначение
Свободное
Этаж
Подвал
Тип входа
Вход через места общего пользования
Перечень помещений
Не указано
Расположение и инфраструктура
Как участвовать в торгах?
Ознакомьтесь с пошаговой инструкцией, в которой вы найдете всю необходимую информацию для участия в торгах.
Узнать больше об участии в торгахВаш онлайн-консультант
Получите консультацию по всем интересующим вопросам