16970589
182
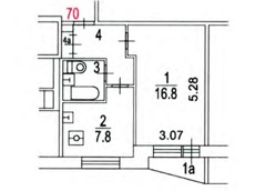
1-комн. квартира на продажу, 31,9 м²
САО, Головинский р-н, Кронштадтский б-р, д. 30, корп. 1, этаж 6, квартира 70
Коптево
17 минут пешком
17 минут на транспорте
Общая площадь
31,9 м²
Жилая площадь
16,8 м²
Площадь кухни
7,8 м²
Этаж
6 из 12
Отделка
Требуется ремонт
Год постройки
1974
Начальная цена
7 342 000,00 руб.
230 156,74 руб. за м²
Статус
Прием заявок
Окончание приема заявок
11.11.2025, 12:00
Ваш онлайн-консультант
Получите консультацию по всем интересующим вопросам
Дата начала приёма заявок
30.09.2025, 17:00
Дата окончания приёма заявок
11.11.2025, 12:00
Отбор участников
18.11.2025, 07:00
Проведение торгов
20.11.2025, 07:00
Подведение итогов
20.11.2025, 14:00
Тип объекта
Квартира
Кадастровый номер
77:09:0001026:5330
Тип жилья
Вторичное жилье
Тип дома
Панельные
Год постройки
1974
Парковка
Наземная
Наличие лифта
Да
Наличие грузового лифта
Нет
Площадь объекта
31,9 м²
Этажность дома
12
Этаж
6
Номер квартиры
70
Количество комнат
1
Ремонт
Требуется ремонт
Площадь жилая
16,8 м²
Площадь кухни
7,8 м²
Наличие балкона
Да
Наличие лоджии
Нет
Высота потолков
250,00 - 250,00 м
Санузел
Совмещенный
Количество санузлов
1 санузел
Расположение и инфраструктура
Как участвовать в торгах?
Ознакомьтесь с пошаговой инструкцией, в которой вы найдете всю необходимую информацию для участия в торгах.
Узнать больше об участии в торгахНачальная цена
7 342 000,00 руб.
230 156,74 руб. за м²
Статус
Прием заявок
Окончание приема заявок
11.11.2025, 12:00
Ваш онлайн-консультант
Получите консультацию по всем интересующим вопросам