16971649
105
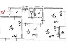
3-комн. квартира на продажу, 61,8 м²
СВАО, р-н Бибирево, ул. Конёнкова, д. 11, 10 этаж, квартира 278
Бибирево
13 минут пешком
13 минут на транспорте
Общая площадь
61,8 м²
Жилая площадь
39,8 м²
Площадь кухни
7,8 м²
Этаж
10 из 12
Отделка
Требуется ремонт
Год постройки
1974
Начальная цена
12 449 000,00 руб.
201 440,13 руб. за м²
Статус
Прием заявок
Окончание приема заявок
11.11.2025, 12:00
Ваш онлайн-консультант
Получите консультацию по всем интересующим вопросам
Дата начала приёма заявок
30.09.2025, 17:00
Дата окончания приёма заявок
11.11.2025, 12:00
Отбор участников
18.11.2025, 07:00
Проведение торгов
20.11.2025, 07:00
Подведение итогов
20.11.2025, 14:00
Тип объекта
Квартира
Кадастровый номер
77:02:0002011:4495
Тип жилья
Вторичное жилье
Тип дома
Панельные
Год постройки
1974
Парковка
Наземная
Наличие лифта
Да
Наличие грузового лифта
Нет
Площадь объекта
61,8 м²
Этажность дома
12
Этаж
10
Номер квартиры
278
Количество комнат
3
Ремонт
Требуется ремонт
Площадь жилая
39,8 м²
Площадь кухни
7,8 м²
Наличие балкона
Нет
Наличие лоджии
Да
Высота потолков
2,65 - 2,65 м
Санузел
Раздельный
Количество санузлов
1 санузел
Расположение и инфраструктура
Как участвовать в торгах?
Ознакомьтесь с пошаговой инструкцией, в которой вы найдете всю необходимую информацию для участия в торгах.
Узнать больше об участии в торгахНачальная цена
12 449 000,00 руб.
201 440,13 руб. за м²
Статус
Прием заявок
Окончание приема заявок
11.11.2025, 12:00
Ваш онлайн-консультант
Получите консультацию по всем интересующим вопросам