16970572
110
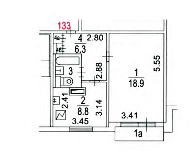
1-комн. квартира на продажу, 37,6 м²
ЮВАО, р-н Марьино, Батайский проезд, д. 33, этаж 2, квартира 133
Марьино
19 минут пешком
19 минут на транспорте
Общая площадь
37,6 м²
Жилая площадь
18,9 м²
Площадь кухни
8,8 м²
Этаж
2 из 16
Отделка
Требуется ремонт
Год постройки
1981
Начальная цена
8 573 000,00 руб.
228 005,32 руб. за м²
Статус
Прием заявок
Окончание приема заявок
11.11.2025, 12:00
Ваш онлайн-консультант
Получите консультацию по всем интересующим вопросам
Дата начала приёма заявок
30.09.2025, 17:00
Дата окончания приёма заявок
11.11.2025, 12:00
Отбор участников
18.11.2025, 07:00
Проведение торгов
20.11.2025, 07:00
Подведение итогов
20.11.2025, 14:00
Тип объекта
Квартира
Кадастровый номер
77:04:0004019:9854
Тип дома
Панельные
Год постройки
1981
Парковка
Наземная
Наличие лифта
Да
Наличие грузового лифта
Да
Площадь объекта
37,6 м²
Этажность дома
16
Этаж
2
Номер квартиры
133
Количество комнат
1
Ремонт
Требуется ремонт
Площадь жилая
18,9 м²
Площадь кухни
8,8 м²
Наличие балкона
Да
Наличие лоджии
Нет
Высота потолков
265,00 - 265,00 м
Количество санузлов
1 санузел
Расположение и инфраструктура
Как участвовать в торгах?
Ознакомьтесь с пошаговой инструкцией, в которой вы найдете всю необходимую информацию для участия в торгах.
Узнать больше об участии в торгахНачальная цена
8 573 000,00 руб.
228 005,32 руб. за м²
Статус
Прием заявок
Окончание приема заявок
11.11.2025, 12:00
Ваш онлайн-консультант
Получите консультацию по всем интересующим вопросам