16971054
131
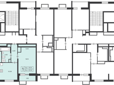
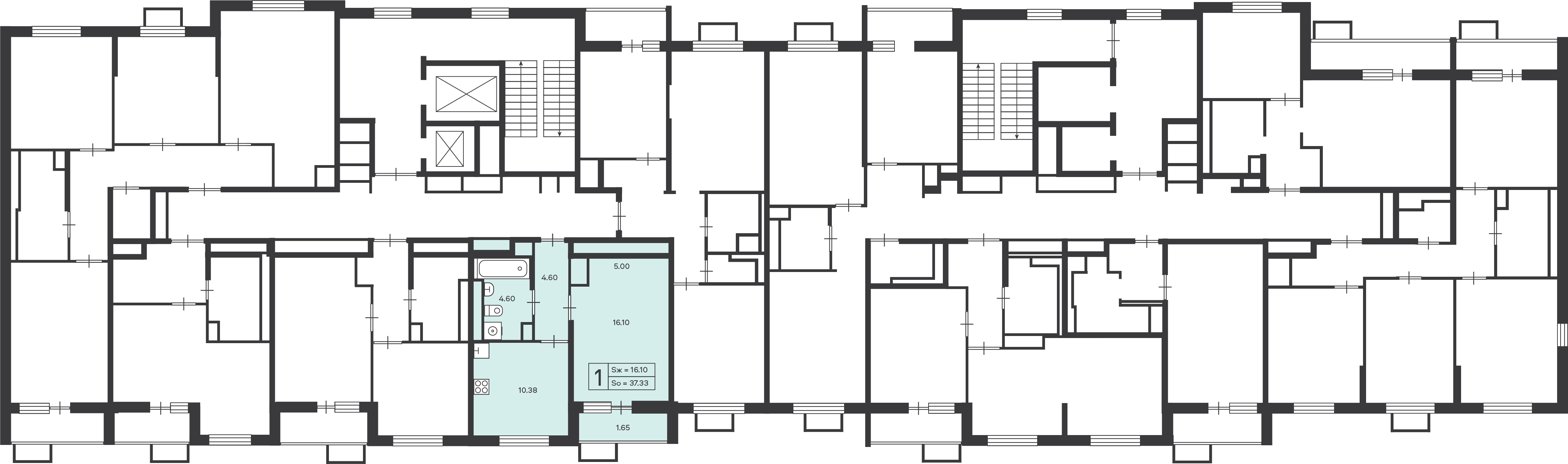
1-комн. квартира на продажу, 37,33 м². Договор долевого участия
ВАО, 3-я Прядильная ул., земельный участок 4, этаж 2, кв. 72
Измайловская
18 минут пешком
18 минут на транспорте
Общая площадь
37,33 м²
Жилая площадь
16,1 м²
Площадь кухни
10,38 м²
Этаж
2 из 15
Год сдачи
2027
Дом
Не сдан
Отделка
С отделкой
Начальная цена
9 982 042,00 руб.
267 400,00 руб. за м²
Статус
Прием заявок
Окончание приема заявок
24.10.2025, 12:00
Ваш онлайн-консультант
Получите консультацию по всем интересующим вопросам
Дата начала приёма заявок
23.09.2025, 17:00
Дата окончания приёма заявок
24.10.2025, 12:00
Отбор участников
31.10.2025, 12:00
Проведение торгов
05.11.2025, 07:00
Подведение итогов
05.11.2025, 14:00
Тип объекта
Квартира. Договор долевого участия
Кадастровый номер
77:03:0005003:9425
Дом
Не сдан
Год сдачи
2027
Тип дома
Монолитные (бетонные)
Парковка
Подземная
Наличие лифта
Да
Наличие грузового лифта
Да
Площадь объекта
37,33 м²
Этажность дома
15
Этаж
2
Номер квартиры
72
Количество комнат
1
Ремонт
С отделкой
Площадь жилая
16,1 м²
Площадь кухни
10,38 м²
Наличие балкона
Нет
Наличие лоджии
Да
Высота потолков
2,67 - 2,67 м
Количество санузлов
1 санузел
Расположение и инфраструктура
Как участвовать в торгах?
Ознакомьтесь с пошаговой инструкцией, в которой вы найдете всю необходимую информацию для участия в торгах.
Узнать больше об участии в торгахНачальная цена
9 982 042,00 руб.
267 400,00 руб. за м²
Статус
Прием заявок
Окончание приема заявок
24.10.2025, 12:00
Ваш онлайн-консультант
Получите консультацию по всем интересующим вопросам