16931171
498
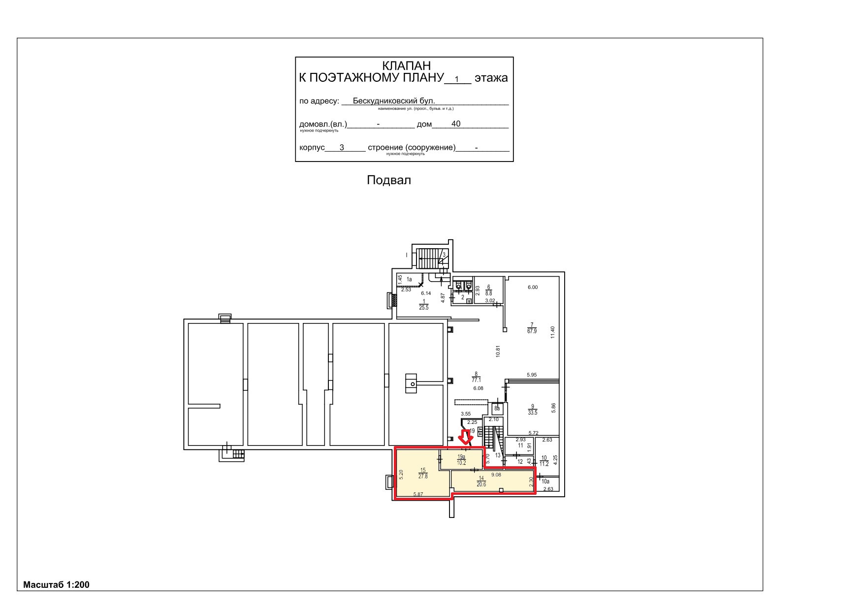
Нежилое помещение на продажу, 58,60 м²
САО, Бескудниковский р-н, Бескудниковский б-р, д. 40, корп. 3, Подвал № 0
Селигерская
13 минут пешком
14 минут на транспорте
Площадь
58,6 м²
Этаж
Подвал
Этажность
12
Ваш онлайн-консультант
Получите консультацию по всем интересующим вопросам
Дата начала приёма заявок
16.08.2024, 17:00
Дата окончания приёма заявок
17.09.2024, 12:00
Отбор участников
24.09.2024, 07:00
Проведение торгов
27.09.2024, 07:00
Подведение итогов
27.09.2024, 14:00
Тип объекта
Нежилое помещение
Кадастровый номер
77:09:0002027:15128
Площадь объекта
58,6 м²
Функциональное назначение
Свободное
Этаж
Подвал
Тип входа
Вход через иную собственность
Перечень помещений
Не указано
Расположение и инфраструктура
Как участвовать в торгах?
Ознакомьтесь с пошаговой инструкцией, в которой вы найдете всю необходимую информацию для участия в торгах.
Узнать больше об участии в торгахВаш онлайн-консультант
Получите консультацию по всем интересующим вопросам

























