16811082
418
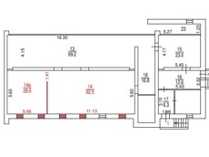
Нежилое помещение на продажу, 226 м²
СВАО, р-н Марфино, Кашёнкин Луг, д.3, подвал №0
Улица Милашенкова
9 минут пешком
10 минут на транспорте
Площадь
226 м²
Этаж
Подвал
Этажность
5
Ваш онлайн-консультант
Получите консультацию по всем интересующим вопросам
Дата начала приёма заявок
17.01.2023, 17:00
Дата окончания приёма заявок
17.02.2023, 12:00
Подведение итогов
21.02.2023, 07:00
Тип объекта
Нежилое помещение
Кадастровый номер
77:02:0017004:13127
Площадь объекта
226 м²
Функциональное назначение
Свободное
Этаж
Подвал
Тип входа
Отдельный
Перечень помещений
Не указано
Расположение и инфраструктура
Как участвовать в торгах?
Ознакомьтесь с пошаговой инструкцией, в которой вы найдете всю необходимую информацию для участия в торгах.
Узнать больше об участии в торгахВаш онлайн-консультант
Получите консультацию по всем интересующим вопросам

