16839123
112
Нежилое помещение на продажу, 263,70 м²
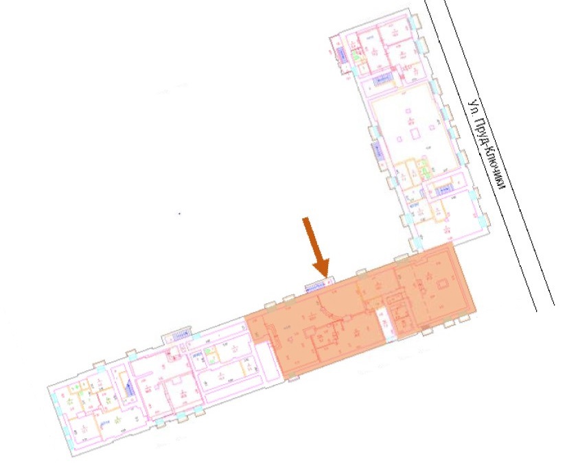
ЮВАО, р-н Лефортово, Российская Федерация, внутригородская территория муниципальный округ Лефортово, ул. Пруд-Ключики, д. 3, Подвал № 0
Авиамоторная
4 минуты пешком
5 минут на транспорте
Площадь
263,7 м²
Этаж
Подвал
Этажность
5
Начальная цена
10 792 000,00 руб.
40 925,29 руб. за м²
Статус
Признаны несостоявшимися
Ваш онлайн-консультант
Получите консультацию по всем интересующим вопросам
Дата начала приёма заявок
16.11.2022, 17:00
Дата окончания приёма заявок
19.12.2022, 12:00
Отбор участников
21.12.2022, 07:00
Проведение торгов
23.12.2022, 07:00
Подведение итогов
23.12.2022, 14:00
Тип объекта
Нежилое помещение
Кадастровый номер
77:04:0001017:4413
Площадь объекта
263,7 м²
Функциональное назначение
Свободное
Этаж
Подвал
Тип входа
Отдельный
Перечень помещений
Не указано
Расположение и инфраструктура
Как участвовать в торгах?
Ознакомьтесь с пошаговой инструкцией, в которой вы найдете всю необходимую информацию для участия в торгах.
Узнать больше об участии в торгахВаш онлайн-консультант
Получите консультацию по всем интересующим вопросам